成都 · 保利和光逸境 | 栖光叙白 | 200㎡
Area / 面积:200㎡
Style / 风格:现代简约
Style / 户型:叠拼
Price / 花费:95w
Designer Style / 类型:全案设计+施工
Designer Agency / 团队:成都宏福樘设计
Address / 地址:成都 · 保利和光逸境

Area / 面积: 200㎡

Style / 风格: 现代简约

Price / 花费: 95w

Designer / 设计师: 江艳丹

Design Type / 类型: 全案设计+施工

Design Agency / 团队: 成都宏福樘设计

Address / 地址: 成都·保利和光逸境

在这套叠拼住宅中设计聚焦于楼梯的形态重塑与阳台的功能转译,旨在缔造一种克制而温润的当代栖居体验。我们以极简的架构为基底,透过材质的细腻对话在碰撞与交融中勾勒出空间的松弛韵律。最终,这里不再仅是物理层面的垂直连接与边界延伸,更化为一种流动的生活场景,于简洁中蕴藏温度,在高级感里浸润日常呼吸

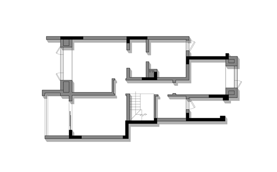
1F

1. 生活动线改至由厨房进入,独立卫生间,便捷使用

2. 拆除厨房局部墙体,将其改造为可开合的联动状态

3. 拆除原有飘窗台面及墙体,扩大客餐厅公区面积

4. 重塑楼梯,增强通透感及流通性



2F

1. 主卧衣帽间及卫生间内退,增设走廊隔板、展示台

2. 更换主卧动线,拆除衣帽间墙体,内退卫生间,优化布局的同时增强储物需求

3. 次卧室飘窗台面及墙体拆除,扩大卧室使用面积



玄关


客厅


餐厅


楼梯


走廊


影音室
d260cd60e8bc945729bf5e0d3f8d8363.png
主卧


软装清单
7336cf88fb1279e100ebaaf4b2e4740c.jpg

对比图
64e24234b9431d21478047cb58463fc6.jpg

相关案例