射洪 · 正黄翡翠公园 | 叠序 | 240㎡
Area / 面积:240㎡ Style / 风格:现代风格 Style / 户型:顶跃 Price / 花费:120w
Designer Style / 类型:全案设计+施工 Designer Agency / 团队:成都宏福樘设计 Address / 地址:射洪· 正黄翡翠公园
Area / 面积:240㎡
Style / 风格:现代风格
Type / 户型:顶跃
Price / 花费:120w
Designer / 设计师:邹健
Design Type / 类型:全案设计+施工
Design Agency / 团队:成都宏福樘设计
Address / 地址:射洪 · 正黄翡翠公园
在这套可塑性极强的顶跃户型中,设计以四世同堂的日常为原点,重新梳理空间秩序。通过搭建客厅挑空区域,新增卧室楼层,使客餐厅回归平层应有的舒展格局。既拉开空间尺度,也强化区域间的互动关系。楼梯被移至核心区域,以雕塑般的姿态融入动线,成为连接上下、贯穿视觉的枢纽。在这里,场景的转换与交融,都是家庭关系的温情回应。每一处用心留白,都在静默容纳岁月的流转与重叠。
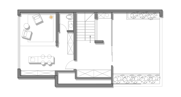
户型改造


1F
1. 玄关正对墙体离缝设计,引入光线,增强互动
2. 景观阳台纳入,扩大内部客餐厅面积
3. 调整楼梯走向,改造在核心区域处,贯穿视觉垂直动线


2F
挑空区域搭建,布局为主卧、两间次卧及一间卫生间


3F
三楼布置多功能茶室、家政区、阳台区
玄关


客厅





餐厅




厨房


卧室
楼梯




主卧






儿童房A
儿童房B



软装清单
对比图
