成都 · 新城国际广场 | 静安 | 160㎡
Area / 面积:160㎡ Style / 风格:现代原木 Style / 户型:四室两厅 Price / 花费:56w
Designer Style / 类型:全案设计+施工 Designer Agency / 团队:成都宏福樘设计 Address / 地址:成都 · 新城国际广场

本次项目位于成都·新城国际广场,建筑面积160㎡,地处成都高新区。拥有完善生活设施,充满烟火气息的优质住宅。
这次是为二胎家庭打造一处改善型亲子宅,以便给予孩子更好的成长环境。第二套房的改造,他们有了更加明确的需求,家不是一个模糊的概念,而是能够承载生活,满足物质精神双重层面需求的港湾。
首先从空间布局着手,将公区释放,打造出让一家四口完全舒适的活动场所。通过拆除、门洞改换,将次卫与主卧的布局更为合理,一个拥有舒适度的家初具雏形。
然后结合屋主的喜好,运用弧形将墙体包裹为住宅增添灵动的活力,而木材为生活空间注入温暖体验。对空间每寸的考量,亦是屋主对生活深度思考的呈现,在不将就中找到令人欢欣的闪光点。
关键词:
原木、弧形、二胎家庭

先从空间着手,构建舒适家的基本形态。去拆解、变幻,明确空间功能属性之后,赋予其新的含义,可以是容纳、陪伴、互动。原木与奶油色书写家的温暖底色,将弧线的柔软一寸寸镌刻,才将家的模样一一呈现。
赋予家更深层次的含义,在时光中锤炼出生活的意义。

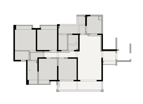
原户型问题
❶ 原始户型格局零散,空间利用率低。
❷ 阳台隔墙遮挡视线,影响采光。
❸ 厨房面积狭窄,收纳空间不足,影响生活体验。
❹ 原始主卧逼仄,储物功能不足,不能满足生活需求。

改造思路
❶ 拆除阳台墙体,增强采光。
❷ 拆除墙体,打造开放式厨房,增强储物功能,提升生活品质。
❸ 次卫干区外置,便于使用。
❹ 主卧拆除原始储物空间,规整格局,提升使用舒适度。
客厅



餐厨




书房


卫生间


主卧





儿童房

