成都 · 德商石榴春和天骄 | 之隅 | 270㎡
Area / 面积:270㎡ Style / 风格:现代 Style / 户型:四室两厅 Price / 花费:100w
Designer Style / 类型:全案设计+施工 Designer Agency / 团队:成都宏福樘设计 Address / 地址:成都 · 德商石榴春和天骄
设计呈现


调整布局,梳理秩序,搭建空间基础框架,将居者的生活态度架构于空间之中。公区以开放形式呈现,洄游、穿插,空间保持亲密状态。社交、休憩、完全独立的姿态,天然为居者提供自如的居家环境。现代意向,凝练的黑白灰色彩语言,传达出简约高级的审美趣味,多元材质的运用透过设计手法,赋予其超越物质本身的内在含义,打造出这处独属于居者的精神场域。
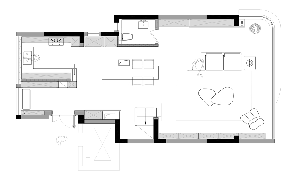
户型改造



户型问题
1. 1楼原始布局零散,空间利用率低。
2. 阳台隔墙遮挡采光,影响美观。
3. 2楼原始布局不够规整,降低空间利用率。



改造思路
1. 1楼生活阳台一分为二分别纳入厨房和玄关,增加使用面积,完整收纳功能。
2. 拆除墙体,打造开放式餐厨,形成自由灵活的洄游动线,优化使用体验。
3. 拆除阳台隔墙,纳入公区,增加使用面积,增强采光。
4. 2楼景观阳台分别纳入主卧和儿童房,增加使用面积。
5. 规整次卧格局,提高空间利用率,满足休憩、收纳、学习功能。
6. 将3楼景观阳台部分面积纳入书房,增加使用面积,完整收纳、休憩功能。
玄关


梳理内在秩序,换鞋、收纳、整理着装,架构起居者与空间的对话。统一的柜面和镜面的加入令视觉不断延伸,而光线的引入使得空间透气舒展,足以摒除外界的纷杂。
客厅



开放舒展的空间形态,重新建立起人的行为动线,在行走洄游间,人与空间形成新的对话。人是居者亦是观察者,在游走探索的过程中,空间的留白为生活预留无限可能。



不同程度的灰调强调出现代意象,原木、布艺是生活温馨舒适的本意,引导居者在每一处简约中挖掘内在丰盈。留白的空间中,找寻最惬意的居家姿态,一杯咖啡,一部影片,潜入时间的缝隙中,享受无边的平和、宁静。
餐厅




重塑格局,镜面弱化柱体存在感,营造出多趣的视觉体验。空间保持开放形态,让家回归最本质的情感联系,柔和的天光,流动的氛围,将空间交予居者去尽情发挥,酝酿、丰盈。
厨房

以简约干练的姿态应对生活的繁杂琐碎,规划内在秩序,精确的尺度与合理的动线,为居者打造全然舒适自如的下厨环境。
楼梯


楼梯扮演着指引的角色,玻璃通透,石材自然,营造出一个轻松自然的场域气质,以纯粹洁净的姿态引导着居者拾阶而上,将静谧宁静的氛围缓缓引出。
主卧


把握空间尺度,延伸多元生活场景,灰调与木色共同营造内敛沉稳的空间气韵,以材质的穿插衔接调动感官,营造静谧闲适的休憩氛围。
卫生间

注重空间的内在秩序,精准的尺度把控打造舒适自在的洗漱体验,纯粹的色调与光影邂逅,抵达内心的宁静令人沉浸治愈。
儿童房



将阳台纳入后,完整空间功能,满足休憩、学习、收纳。绾色与姜红为空间注入一份可爱甜美,卡通童趣的家居元素,守护这份独一无二的童稚想象,梦幻烂漫。
次卧

次卧保留睡眠、储物、学习功能,松灰色营造更为私密的居住氛围,融入多元色彩增强丰富的视觉感受,然后把空间交予居者去丰盈,在过程中激发想象力和创造力。
次卫

次卫保持纯粹调性,刻画出洗漱空间的通透舒适,在行动感受间,还原生活的平和和温度。
书房



书房与自然保持着最亲密的联系,位于3楼的绝佳位置,让这里成为一处有隐秘悠闲的世外桃源。办公、休憩、饮茶,自然的气息伴随着微风袭来,松弛的氛围弥漫整个空间,这是属于居者的生活美学。