成都 · 东湖壹号 | 枕山 | 145㎡
Area / 面积:145㎡ Style / 风格:中古法式 Style / 户型:三室两厅 Price / 花费:65w
Designer Style / 类型:全案设计+施工 Designer Agency / 团队:成都宏福樘设计 Address / 地址:成都 · 东湖壹号
设计呈现

家是对生活与理想的追寻,对于居者而言,回归自然的那份静谧、平静感受是无可替代的。家不止是一处住所,更是精神岛屿,在喧闹、快节奏的当下,才能保持本心,寻得生活的真正含义。
由生活出发,我们通过规整格局,协调布局,打造舒适、有序的居住环境。随后大量融入原木材质,木质的温润与自然质感,赋予空间生命力和故事性。绿植、花砖、弧线、布艺,是属于居者独一无二的审美情调,在这里生活的每一幕都充满感染力与生命力。
自然、温暖,这是居者对生活的注解。木色唤醒居者对自然的感知,心情也随之平静,对生活的态度沁入每个角落,每一刻都倍感松弛、快乐。
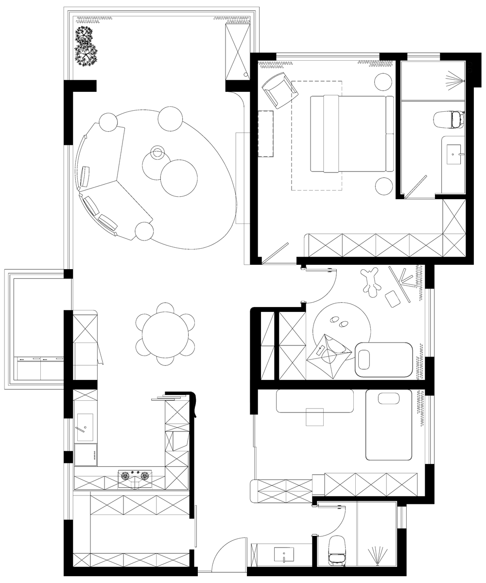
户型改造

户型问题
1. 原始布局不够规整,空间利用率差。
2. 厨房面积狭窄,使用体验差。
3. 阳台隔墙遮挡采光,影响美观。

改造思路
1. 压缩临玄关次卧面积,拓宽厨房使用面积,优化使用体验。
2. 将阳台纳入客厅,增加使用面积。
玄关


由弧形过渡墙体打造柔和的空间氛围,不同的材质、线条、光影节奏,围绕居者的个性化审美,带来充满趣味与仪式感的生活体验。
次卧改造为鞋帽间使用,满足悬挂、收纳需求,原木材质传递着自然与温润,实现颜值与功能的完美整合,充满着生活温度,有序、舒适。
客厅




暖调原木铺就客厅的温情底色,弧形造型将空间轮廓打磨得包容温润。布艺沙发以柔软触感承接每一寸松弛时光,点缀一抹绿意,为空间注入呼吸感。原木与布艺在光影中交织出诗意的慢生活场域,让人不禁深陷这份被自然包裹的治愈力。
餐厅




木质围合出餐厅的暖意,原木餐桌延伸出自然生长的脉络,艺术感餐椅以柔弧承托闲适时光,让三餐都浸润着器物之美与生活灵光。沿墙定制餐边柜,鱼肚白小砖在背景墙上拼贴出几何韵律,这里不仅满载烟火,也流淌着生活情调。
厨房

拓宽厨房面积后,舒适的尺度营造更为舒适的使用体验。暖调原木与奶油白在敞阔的空间叠合晕染出简约的空间氛围,加入骨骼线增加视觉层次。几何花砖将优雅与情调植入,在这里,三餐琐碎也被温柔包裹。
生活阳台

主卧


木质在光影的渲染下成就这个温暖、慵懒的生活港湾,空间没有定义,法式线条,混搭元素,这里充满多种可能性。繁华的装饰艺术,融入自然优雅的生活格调,空间在静谧中流露出复古气息。
主卫

花砖铺陈营造浪漫的洗漱氛围,珊瑚赫在光影流转间漾开复古情调,异形镜面成为点睛之笔,优雅灵动,木质与金属的碰撞,为平淡的日常注入仪式感。
儿童房

以木色和桃红营造梦幻、温暖的居住氛围,空间预留出灵活变动的可能,秋千、帐篷、玩偶,释放孩童天性,让这里成为承载童趣的温馨天地。
次卫

干区外置打造舒适的使用体验,花砖与原木穿插,更添一份复古慵懒气质,打造出功能与情感融为一体的洗漱空间。
书房

几何体块、线条、色调、肌理的叠加,形成丰盈的视觉感受,休憩、办公、阅读,每一次体验都是居者与空间的情感交流与联结,在舒适的状态中寻得自洽。