成都 · 建发观唐映月南区 | 浅初 | 178㎡
Area / 面积:178㎡ Style / 风格:现代混搭 Style / 户型:三室两厅 Price / 花费:62w
Designer Style / 类型:全案设计+施工 Designer Agency / 团队:成都宏福樘设计 Address / 地址:成都 · 建发观唐映月南区
设计呈现

家不仅是生活的容器,更是心灵的栖息地。屋主希望家是兼顾功能与美感的理想居所。应对生活中的繁琐之余,期望能够打破传统审美,碰撞出独属于自己的家居美学,给予生活全新诠释。
拆除部分墙体,规整书房及主卧布局,优化储物系统。空间以奶昔白为底,营造通透纯粹的氛围基调,石材、玻璃、布艺材质碰撞,赋予生活质感同时营造多元体验。大胆使用绛红、宝石蓝、黑白等色彩点缀,打造视觉张力,最终给人带来余味无穷的空间感受。
色彩、材质与空间对话,在人的体验中锚定内心,随场景、时光变化,给予居者全新的感受。
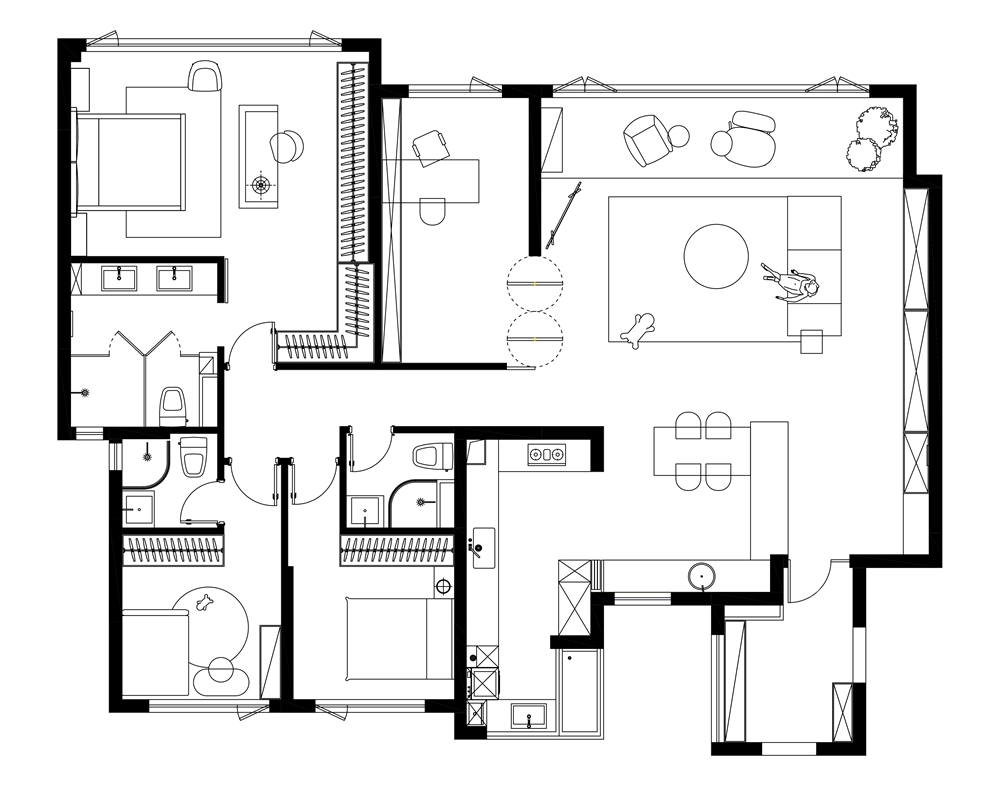
户型改造

户型问题
1. 主卧与相邻次卧布局不够规整,影响空间利用率。

改造思路
1. 拆除墙体,规整布局,完整主卧储物系统,优化使用体验。
2. 次卧改换门洞方向,优化动线,改造为书房使用。
客厅




客厅开放式格局,奶昔白铺展纯粹无垠的空间意境。柜体利落穿插,勾勒几何韵律,筑起视觉的诗行。圆润沙发如云朵栖息,与弧形吊顶温柔对话,共筑一方柔和惬意的港湾。灵动家居随心而置,社交场域自在切换。于此开阔之境,呼吸自由之风,生活本真,在光影间流淌成一首流动的诗。
阳台


抬高的地台无形划分悠然场域,温润原木铺陈自在暖意。简约置物架悄然融入,随意安放的摆件与挂画,在此生长为生活的诗意注脚。
餐厅



岛台餐桌一体,兼顾用餐、聚餐、办公多元功能。清透玻璃与凝练石材交织碰撞,葱绿跃动其间,注入盎然生机,亦化作玄关处朦胧的诗意屏风。转身,定制西厨以石材细腻的质感,于空间诠释自然雅意,方寸天地,既能容纳烟火,亦能承载诗意。
书房



宽绰尺度间,中轴门轻旋,缤纷色块、清透玻璃与光影共舞,材质与色彩碰撞出丰盈的视觉张力。极具个性的挂画、摆件、家居栖居其间,成为空间的注脚。色块的低语、材质的肌理、线条的韵律在此交融、淬炼,终筑成一方独一无二的精神殿堂。
主卧



规整格局后,完整储物系统,悄然隐逸繁杂,镜面柜门延伸视觉纵深,亦便于整理仪容。原木与白调交织,铺陈简约而温润的休憩底色。一隅,灵动的橙色玻璃砖墙跃然眼前,为静谧空间注入蓬勃生机。于此,功能收纳与美学表达精妙平衡,栖居的每一刻,皆是身心妥帖的优雅叙事。
主卫


空间三分离设计,晨起暮时给予居者舒适体验。橙色玻璃砖成为空间内外呼应的视觉介质,光影转换间,空间形成互动。石材嵌入异形镜面,赋予生活质感同时,弱化石材的冷硬感,空间更为灵动。
次卧

纯白基调下,营造纯粹静谧的睡眠氛围,仅点缀一幅挂画,打造出简约不失童趣可爱的休憩空间。
儿童房

原木铺就温馨基底,四绿色自然清新。萌趣家居与灵动摆件错落其间,这里是专属的奇妙乐园,盛放着不设限的想象,在木纹的肌理与鲜活的色彩间,守护每一寸无忧无虑的成长时光。