成都 · 水韵尚城 | 杳柿 | 350㎡
Area / 面积:350㎡ Style / 风格:复古混搭 Style / 户型:联排别墅 Price / 花费:120w
Designer Style / 类型:全案设计+施工 Designer Agency / 团队:成都宏福樘设计 Address / 地址:成都 · 水韵尚城
Area / 面积: 350㎡
Style / 风格: 复古混搭
Price / 花费: 120w
Designer / 设计师: 张霞
Design Type / 类型: 全案设计+施工
Design Agency / 团队: 成都宏福樘设计
Address / 地址: 成都·水韵尚城
350㎡联排别墅以"时空对话"为灵感,巧妙糅合复古的厚重、法式的优雅与现代的简约。胡桃木温润碰撞洞石粗粝,每个角落都在诉说三代同堂的生活诗意,既有咖啡与书的静谧,也有孩童嬉戏的欢愉,更藏着于岁月中细致的独特品味。
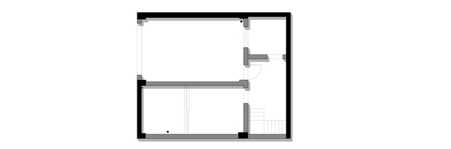
设计改造


1F
1. 纳入天井,将空间整合为多功能书房
2. 储物间改换动线,完整书房外公区视觉


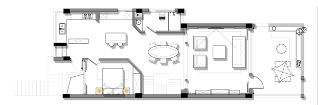
1F
1.整合一楼入户、厨房、餐厅、卧室、卫生间关系,更换动线,规划出全新的玄关、中厨、西厨、餐厅、次卧、卫生间布局


2F
1. 主卧外部区域纳入室内,扩充使用面积,并将部分原始墙体拆除,重新布局睡眠区与衣帽间关系
2. 重塑主卧卫生间与走廊之间墙体,多元使用功能
3. 一间次卧外部区域纳入,扩充卧室面积的同时,一部分独立为家政区域
玄关

厨房




餐厅






客厅








卫生间


楼梯



书房


走廊

主卧







儿童房


软装清单

对比图
