成都 · 弘阳合园 | 言筑 | 273㎡
Area / 面积: 370㎡ Style / 风格:现代 Style / 户型:独栋别墅 Price / 花费:167w
Designer Style / 类型:全案设计+施工 Designer Agency / 团队:成都宏福樘设计 Address / 地址:成都 · 弘阳合园
设计说明

对于生活的设想,希望通过功能改造、材质运用和装饰布局,打造一个自然沉浸又不失美学风格的精神港湾。以温润的色调,自然舒适的材质回应家的内在含义,当生活褪去浮华喧嚣的外壳,才逐渐显露它最真实、动人的面貌。
通过拆解、重组,明确空间功能属性,公区自由灵活,私区梳理内在秩序。以温润的色调和肌理感在光线作用下,缓缓氤氲纯粹疗愈氛围,洞石、大理石、原木、金属等材质碰撞,弧形线条勾勒艺术形态,将功能与美学融入生活,在体验与交流中完成故事的叙述。
空间不止是生活容器,更是寻找内心宁静的精神港湾。每一寸都融入对生活的态度,自由、松弛又拥有着独特的审美,把热爱编织进家中。
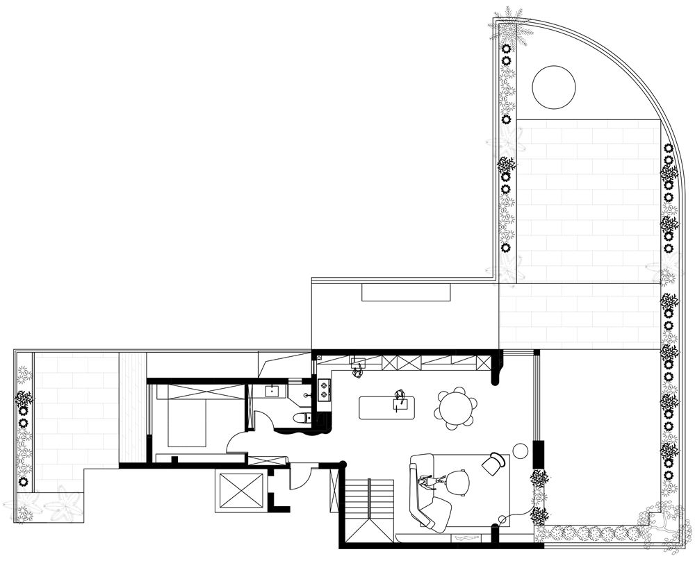
户型改造



户型问题
1. 1楼原始厨房面积较窄,影响使用体验。
2. 2楼布局较为零散,影响空间利用率。



改造思路
1. 1楼拆除厨房墙体,餐厨一体化,增加使用面积和增强采光,新建柜体,完整储物功能。
2. 2楼将次卧和阳台纳入主卧,增加使用面积和采光,拆除隔墙,新建柜体,完整卧室收纳功能。
3. 扩充主卫使用面积,满足洗漱、泡澡、淋浴、如厕多元需求,优化生活体验感。
4.楼梯左侧次卧,变换门洞位置,增加使用面积,新建柜体,满足收纳需求。
玄关

玄关以统一色调奠定宁静基调,软膜天花光线倾泻如自然柔光,空间通透而温润。流畅曲线延伸,巧妙弱化墙体边界,赋予艺术形态。精心排列的柜体,高效收纳,于从容优雅间满足实用所需。
客厅



客厅消隐电子荧幕的叨扰,以灵动家具自由围合,构筑随性交流的温馨场域。优雅弧线于空间游走,圆润形态温柔入画;天然石材为现代居所注入自然呼吸。家具线条凝练如艺术雕塑,勾勒雅致生活图景。其间点缀竹绿、娇黄,点亮视觉,唤醒盎然生机。
厨房


拆除隔墙,空间豁然开朗,新增岛台,延展烹饪舞台,通透舒适由此而生。流畅L型动线,岛台聚合成多元生活剧场。石材与温润弧线,悄然呼应公区美学。烟火气暗藏优雅,一餐一饮皆是流动的仪式诗篇。
餐厅


餐厅仅以一桌、一灯、几把餐椅便围合出温暖亲密的烟火场域。金属、丝绒、原木,材质碰撞视觉张力,更悄然诉说生活质感。餐边柜以天然大理石为底,几何体块利落穿插,材质本身即是生活宣言,于简约中淬炼不凡,成就功能与美学的优雅共生。
次卧

次卧改造为多功能空间使用,左侧柜体与洞洞板巧妙穿插,温醇木色碰撞深邃澜夜,利落几何线条勾勒简约之美。右侧设置墨菲床一拉一合间,实现休闲与休憩的功能转换,智慧演绎空间转场艺术。
卫生间

次卫满足洗漱、如厕、淋浴基础功能,纯粹的空间基调,天然石材肌理映衬圆形镜面唤醒日常仪式感,一株绿意悄然点缀,于素净中唤醒盎然生机,让平凡时刻亦浸润清新诗意。
多功能影音室




多功能影音室弧形墙面与光影共舞,织就一室深邃静谧。黑白灰基调奠定摩登底色,现代气质浑然天成。金属材质与灵动线条悄然对话,碰撞出独特艺术张力,尽显独特个人审美。弧形沙发温柔环抱,以极致舒适邀人沉入音画秘境,共赴一场感官与灵魂的光影私享盛宴。




岛台化身生活舞台,品酒闲叙间情调流转。几何体块穿插,色彩、石材、孟菲斯木饰面强调生活质感,丰盈视觉体验。餐边柜与展架共舞,发光背板轻托珍藏,令心爱之物升格为空间艺术。
电竞房


电竞空间以冷冽金属和炫彩光效构架未来感体验,发光背板悉心烘托珍藏,收纳与展示在此智慧共生。深邃海涛蓝划破单调,注入沉静力量。一侧辟出绿意角落,天光倾泻而下,自然气息温柔渗透,此处,亦成为居者的精神绿洲。
卫生间

卫生间铺陈天然石材,粗粝肌理携自然气息低语,墨白几何色块利落点缀,于极简中淬炼高级格调。将精致悄然织入日常经纬,方寸之间,生活质感无声流淌。
楼梯间

原木石材、金属,天然纹理与精致质感碰撞出艺术张力,成为视觉焦点。柜体与开放格组合,兼顾实用性,挂画、书籍、绿植陈列成为生活美学的延伸。
衣帽间


次卧重构,衣帽秘境悄然新生。隔墙以粗粝石肌铺展自然诗篇,串联主卧,洄游动线自由流淌兼顾展陈功能,陈列生活的精致主张。镜面延展空间维度,金属肌理辉映现代锋芒。于此,收纳艺术与奢适体验达成共鸣。
主卧




主卧纳阳台为境,框一窗诗意栖居。晨昏光影、四季风景为伴,闲情于此悄然生长。纯粹底色铺陈静谧,原木金属、布艺形成视觉碰撞,艺术形态凝驻时光。简约中流淌丰盈叙事,生活的诗篇,在此一隅温柔礼遇。
主卫


卫生间满足洗漱、淋浴、泡澡、如厕需求,黑白色块营造简约氛围,石材强调生活格调,光影氤氲情调,在此的生活节奏舒缓。
儿童房



门洞轻移,拓一方成长天地。纯白画布上,光影漫游,宁静悄然栖息。萌趣家居形态间,栀子黄轻灵跃动,丁香紫微甜晕染,棠梨褐温暖沉淀,童真与秩序在此温柔相契,盛放成长的轨迹。