成都 · 德商御府天骄 | 羽梦里 | 210㎡
Area / 面积:210㎡ Style / 风格:现代极简 Style / 户型:跃层 Price / 花费:120w
Designer Style / 类型:全案设计+施工 Designer Agency / 团队:成都宏福樘设计 Address / 地址:成都 · 德商御府天骄
Area / 面积: 210㎡
Style / 风格: 现代极简
Price / 花费: 120w
Designer / 设计师: 蒋礼
Design Type / 类型: 全案设计+施工
Design Agency / 团队: 成都宏福樘设计
Address / 地址: 成都·德商御府天骄
210㎡跃层空间以暖色材质构筑温馨基调,呼应屋主舞蹈教师的职业特质。设计通过流动的弧形语言演绎空间柔美,营造具有包裹感的温度居所。巧妙整合公共区域有机联动,打破边界后呈现出开阔自然的复合型生活场域。
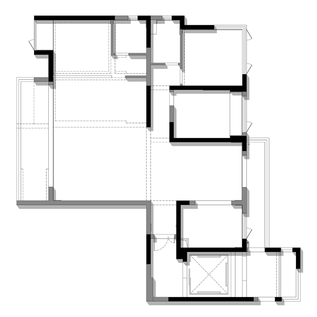
设计改造


1F
1. 两侧阳台纳入,扩充内部使用面积
2. 拆除厨房局部墙体,加入岛台,与餐厅形成开放连接的互动状态
3. 一间卧室改造为开放式衣帽化妆间
4. 更换父母卧室动线,扩大楼梯走廊空间,同时设计弧形墙体,形成客厅美学端景
5. 新建盘旋楼梯


2F
新建楼梯后优化动线,重新分配二楼主卧面积,将其改造为与屋主生活习惯适宜的舒适套房
玄关


客厅








餐厅





厨房



衣帽间


儿童房





父母房


楼梯



主卧




卫生间



软装清单

对比图
