成都 · 龙湖滨江云河颂 | 墨界 | 186㎡
Area / 面积:186㎡ Style / 风格:现代极简 Style / 户型:三室两厅 Price / 花费:84w
Designer Style / 类型:全案设计+施工 Designer Agency / 团队:成都宏福樘设计 Address / 地址:成都 · 龙湖滨江云河颂
设计说明

繁华的都市中,追求“静”仿佛成了刻入生活的本能。居者渴望能够通过材料、色彩、光影的融合,把家打造为具有视觉识别与功能并存的精神场域。
从居者的需求出发,全屋仅做局部调整,通过改换、整合,打造更契合生活习惯的居住空间。黑与白的纯粹交织,铸就一个具有识别性的沉浸场域。留白成为与生活对话的余韵,融入石材、金属等材质反差营造丰富的感官体验,共同筑就一个舒适、宁静且富有张力的居所。
通过几何体块交错塑造一个兼具功能与视觉审美的居住空间,在纯粹中感知放松与归属。
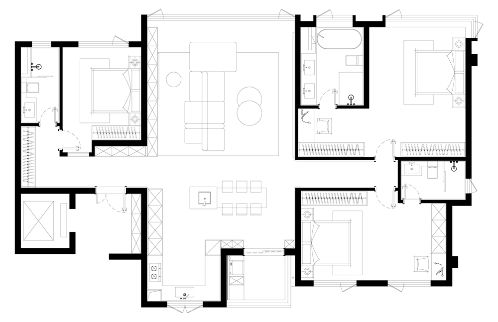
户型改造

户型问题
1. 原始布局无储物规划,不满足日常收纳需求。

改造思路
1. 改换临玄关次卧门洞位置,释放部分面积,改造为家政区使用。
2. 将两间次卧合并,改换次卫门洞,并将其纳入,打造一个满足休憩、收纳、洗漱的舒适套房。
3. 主卧定制柜体,完整收纳需求。
玄关

释放次卧部分面积,改造为家政区使用,黑白色块的极致对比,打造深邃、沉浸的视觉感受,自然天光洒入,放松从归家这一刻开始。
客厅




围绕豆腐块沙发,形成灵动洄游动线。社交、观影、阅读,场景随心而变。黑白对比赋予视觉张力,大片留白则注入静谧能量。于此,动静皆宜,感受身心彻底舒展的自在状态。
餐厅



统一色调营造深邃沉浸的用餐氛围,岛台与餐桌一体衔接,让用餐、休闲、办公等场景自由切换。融入石材点缀,以独特肌理诠释不凡的生活质感,于每一餐中体味从容。
主卧



定制储物系统满足收纳需求,延续黑白对比的纯粹底色。几何体块交错,金属材质点缀,恰到好处的留白与流转的光影,勾勒简约高级感。床尾置物架,摆放读物与摆件,丰盈日常,共筑一方静谧天地,让人彻底沉静,品味生活余韵。
儿童房



合并空间打造专属孩子的梦幻堡垒,树屋造型柜体点亮童趣,纯净白与原木色营造安全温馨感。这里不仅是休憩与学习的天地,更是想象力自由生长的秘密基地,守护纯粹快乐。
次卧

纯白底色与阑夜黑几何色块交错,构成高级视觉。光影流动,丰富层次的同时,晕染出宁静氛围,治愈身心。