成都 · 绿城桂语朝阳 | 汐间 | 248㎡
Area / 面积 :248㎡ Style / 风格:中古混搭 Style / 户型:跃层 Price / 花费:110w
Designer Style / 类型:全案设计+施工 Designer Agency / 团队:成都宏福樘设计 Address / 地址:成都 · 绿城桂语朝阳
Area / 面积: 248㎡
Style / 风格: 跃层
Price / 花费: 110w
Designer / 设计师: 张宇翔
Design Type / 类型: 全案设计+施工
Design Agency / 团队: 成都宏福樘设计
Address / 地址: 成都·绿城桂语朝阳
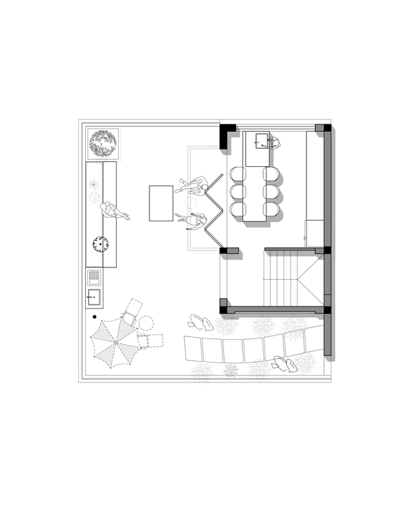
以“叠境·共生”为理念,重构上叠空间关系,诗意编织空中花园于生活脉络之中,使其既是生机盎然的独立庭院,也成为室内空间的动态画框与情感延续。设计通过流动的尺度把控,将客厅、餐厨与花园借由整幅移门及精巧窗洞相连,视觉通透延展。抬升的花园化为立体窗景,依托框景与悬挑手法,令绿意四季流淌入室。
设计改造


1F
1. 景观阳台纳入,扩充内部使用空间
2. 拆除厨房墙体,更换布局,与客餐厅形成开放互动关系
3. 借用部分厨房面积,扩大卫生间面积


2F
1. 开放空间改造为多功能书房
2. 景观阳台、次卧与主卧合并,并拆除主卫,融合为一间包含睡眠区、衣帽间、休闲阳台一体的舒适套房
3. 借部分主卧面积扩大卫生间面积


3F
将卧室改造为与花园融合的多功能休闲空间
客厅












餐厨





次卧

楼梯






二楼书房



主卧













卫生间






三楼茶室



软装清单

对比图
