成都 · 万科金域南湾 |墨曜 | 295㎡
Area / 面积:295㎡ Style / 风格:现代风 Style / 户型:三室两厅 Price / 花费:103w
Designer Style / 类型:全案设计+施工 Designer Agency / 团队:成都宏福樘设计 Address / 地址:成都 · 万科金域南湾
设计说明

家,不仅是栖身之所,更是生活美学的立体宣言。屋主希望拥有一个兼具时尚与质感的居住空间。每当卸下纷扰而归,这方天地便以松弛惬意的氛围包裹身心,引导屋主在每一处细节中体验到居家的舒适与品质。
原始空间布局零散,结合居者生活需求,协调布局,打造舒适、有序的居住环境。中性色调铺陈基底,几何元素巧妙点睛。石材、金属、镜面材质碰撞,丰富了空间的层次。大胆使用绛红、晴空蓝、烟灰粉等色彩点缀,打造视觉张力。这里既是高效生活的精密容器,亦是滋养精神的自由领地。
利落的几何形状构建出理性与秩序的框架,色彩、材质、光影、结构的多元碰撞形成和谐统一的视觉韵律,给予居者全新的空间体验。
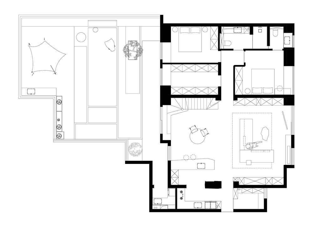
户型改造


1F
1.拆除墙体,打造开放式厨房,增加操作台面,优化使用体验。
2.将紧邻客厅的一间次卧纳入,扩大使用面积。
3.新建墙体,将一间次卧划分出独立的睡眠区和储物空间。


2F
1.规整布局,新建墙体,将女儿房融合为集休憩、洗漱、学习、收纳于一体的舒适套房。
玄关


推门而入,视线沿走廊延伸,开门即见的纵深引导目光落向过道尽头的挂画,营造出的独特归家仪式感。以简洁的线条和色彩为主导,与空间整体的色调相呼应。它不仅是空间过渡,更是在卸下外界繁杂的过程中,赋予居者一份平静之感。
客厅



空间以黑白灰为主导,氛围纯粹而富有层次。融入现代美感的家居,以简约线条开启空间叙事。微水泥的横梁自然裸露,完整的保留了层高,与白墙拼接碰撞,呈现质朴的自然氛围。若隐若现的渐变蓝,呈现出朦胧美感,跳脱的绛红,为空间注入盎然活力。于此间,简单而惬意的生活图景将徐徐展开。
餐厅


厨房、西厨、吧台、餐厅无界联结,形成自由流动的生活场域。简约流畅的线条、鲜明的色彩展现出独特的视觉张力。一日三餐的人间烟火于此间弥漫升腾,交织成温馨日常。
厨房




打破原有格局后,开放式厨房设置岛台增加操作面积,同时衔接与厨房、餐厅的互动。软膜天花倾洒均匀柔光,缓解了金属材质带来的冷硬感。宇宙黑石材神秘而奢华,赋予空间纯粹与通透。渐变蓝悄然点亮,柔和的光线透出,为整个空间增添了一抹现代的艺术感。
花园





一方精筑的户外休闲区,简约座椅与茶几静候时光。功能与美观于此达到精妙平衡,是闲适的独处角落,亦是欢聚的活力场域。绿意葱茏跃动其间,自然气息悄然弥漫。
主卧

以简约色调渲染静谧氛围,红蓝碰撞的吊灯唤醒空间活力。先锋金属邂逅吸睛孟菲斯木饰面,材质碰撞间,奏响优雅奢华的视觉乐章。此间安眠,身心俱沉浸在精致格调之中。
主卫

卫生间满足基础使用需求,清爽的蓝色水磨石墙静默而立,营造宁静平和的空间氛围。晨间暮时,临窗揽景,纵享只属于自己的放松时刻。
次卧

外部风格延续于内,追求纯粹的功能。几何边几轻巧点睛,素白壁灯凝光塑影,悄然增加空间层次,营造更为舒适惬意的休憩氛围。
次卫


次卫干湿分离,满足洗漱、如厕、淋浴需求,打造舒适体验。延续晴空蓝水磨石,为空间带来清凉视感。澄澈的蓝白空间里,所有的疲惫与喧嚣都被温柔包裹,如沐云端。
楼梯


悬浮式楼梯如云朵般轻盈,其底部延伸出地台,不仅起到缓冲过渡的作用,更与楼梯形成和谐的整体。当隐藏的灯带亮起,绝佳的光影效果瞬间将氛围感推向极致。在玻璃扶手的细节处理中,保持空间的统一质感。天井将自然光线巧妙引入室内,渲染出宁静柔和的氛围,心绪随之沉静。
女儿房



把2楼打造为集休息、收纳、洗漱为一体的女儿房,赋予空间绝对的私密与静谧。弧形门优雅写意,空间层次悄然丰盈。奶油白与烟灰粉穿插,浪漫气息应和少女心绪。窗边卡座自然衔接悬浮书桌,通透视野间,书写成长的温柔诗篇。
女儿房卫生间

纯白基调消弥疲惫,一抹烟灰粉跃入,温柔打破传统印象,为空间增添梦幻色彩,让每一次洗漱都成为愉悦享受。